
Этот проект предполагает строительство четырёхквартирного жилого дома в пригородной зоне. Площадь застройки представляет собой узкий участок неправильной формы, почти треугольной формы, по бокам которого под острым углом пересекаются две дороги.

Архитекторы срезали объём в форме башни под углом около 45 градусов и изменили размер проёмов, чтобы он выглядел как единый объект и не создавал впечатления, что жилые блоки расположены друг на друге.

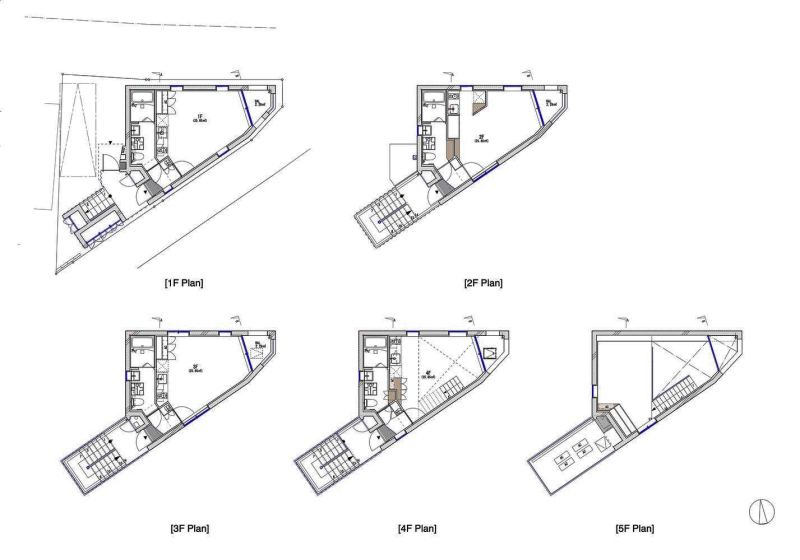
Учитывая небольшой размер участка, там не было места для лифта, поэтому вход в квартиру на верхнем этаже был расположен на четвертом этаже, самой высокой точке, куда можно было подняться по лестнице, а четвертый и пятый этажи были соединены, чтобы создать двухуровневую квартиру.

Внутреннее пространство, разделённое по диагонали как в плане, так и в разрезе, имеет небольшой объём, но создаёт определённое ощущение дистанции внутри, в результате чего в жилом помещении создаётся необычное ощущение простора.


Это сооружение представляет собой железобетонную стену с почти треугольной планировкой и проёмами по острым углам. На первый взгляд, расположение сейсмостойких стен кажется несколько несбалансированным, но наличие внешней лестницы помогает выровнять центр тяжести и жёсткость.


Кроме того, лестница из железобетона опирается на массивную квадратную стойку диаметром 100 мм, которая проходит через лестничную площадку. Крыша в верхней части опирается на одну точку, как шарнир, поэтому в перекрытие были вмонтированы стальные балки Т-образной формы, чтобы стабилизировать её.

