
Расположенная в самом центре Парижа, резиденция предлагает убежище женщинам, подвергшимся насилию. Возглавляемый Vilogia Group и управляемый ассоциациями FIT "Une Femme, Un Toit" и "Aurore", она предоставляет временное жилье — важный переходный этап в их путешествии, позволяющий им вновь обрести чувство достоинства и безопасности, прежде чем начать новую главу в своей жизни.

Проект представляет собой современное и устойчивое сооружение, вобравшее в себя нормы высококачественной парижской архитектуры и символизирующее чувство стабильности. Благодаря использованию благородных материалов и продуманному подходу к строительству, здание отражает намерение предложить простое, но достойное жилье, далекое от срочности и ненадежности, с которыми ранее сталкивались эти женщины.

Масштабная строительная площадка представляла собой сложную техническую задачу, поскольку узкие улицы и ограниченная грузоподъёмность подъездных путей не позволяли подъезжать к ней любой технике весом более 3,5 тонн, включая подъёмные краны.

В результате для реализации проекта потребовались оригинальные решения: разгрузочная платформа за пределами площадки, транспортировка материалов по подземным сетям и ленточным конвейерам, строительное оборудование, доставляемое в комплекте и собираемое на месте, а также полное отсутствие подъёмного крана.


Из-за полного отсутствия подъёмного крана на стройплощадке и ограничения по весу в 3,5 тонны конструкция выполнена из бетона и блоков для опалубки. Фасад облицован массивным кирпичом на утеплённых стенах.

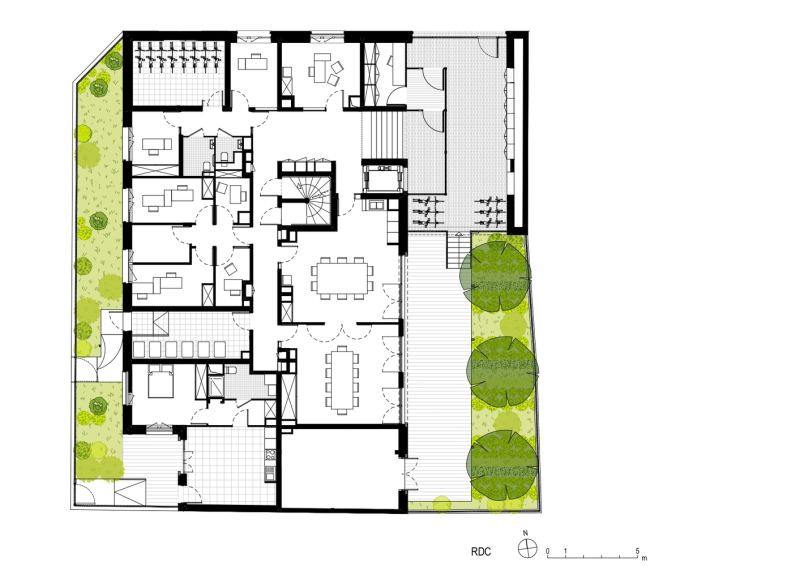
Спроектированный как уютное и безопасное убежище, вход в резиденцию осуществляется через широкое крыльцо, которое обеспечивает плавный переход между внешним миром и личным пространством. Открытый коридор с перекрёстной вентиляцией ведёт к вестибюлю и центральному саду, вокруг которого расположены все жилые помещения общего пользования, озеленённые и залитые солнцем.


В том же духе коридоры верхних этажей имеют естественное освещение, что создаёт приятную и успокаивающую атмосферу. Они ведут к 81 компактной, но тщательно оборудованной студии. Большие окна обеспечивают удобную связь с внешним миром, сохраняя при этом как благоустроенность помещений, так и приватность жильцов.
