
Терминал был задуман как новый портал в Королевство Зулусов, приглашающий туристов познакомиться с провинцией и традиционной культурой. По сравнению с причалом, к которому причаливают круизные лайнеры, его мощная форма представляет собой запоминающийся достопримечательный объект, соединяющий гавань и город.

Этот конверт, созданный с учётом явной африканской самобытности, вдохновлён естественными цветами, яркими текстурами и традиционными треугольными мотивами, характерными для ремесел Зулу. Африканский колорит, вдохновлённый произведениями искусства Зулу, уникален, контекстуален и требует внимания, смело контрастируя с традиционной нейтральной «трактовкой», характерной для большинства транспортных зданий по всему миру.

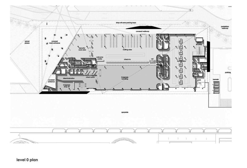
Круизный терминал требует больших потоков людей в короткие сроки, поэтому чёткое и понятное планировочное решение на одном уровне имеет основополагающее значение. Одновременно с обеспечением такой циркуляции терминал предназначен для переоборудования в конференц-центр в течение 5-месячного межсезонья, когда круизы не проводятся.

Чтобы обеспечить быстрое выполнение работ, необходимо было уделять особое внимание эффективному движению транспортных средств и пешеходов. Тщательно спланированные пункты въезда и выезда, маршруты движения и зоны высадки обеспечивают беспрепятственный доступ, посадку пассажиров и обработку багажа.

По сути, это большой ангар с большими пролётами, его ограждающая конструкция состоит из основной стальной конструкции глубиной 1,2 м, покрытой алюминиевым листом. Это техническое решение применяется в вертикальных и слегка наклонных горизонтальных плоскостях и позволяет создать консоль с очень длинным северным краем, закреплённую на одной точке. Система облицовки тщательно продумана, чтобы органично вписаться в общую конструкцию.

Терминал спроектирован таким образом, чтобы облегчить посадку и высадку 6000 пассажиров в день, а в течение 5 месяцев межсезонья он может быть преобразован в конференц-центр, что достигается за счёт того, что перегородка полностью раздвигается. Из просторных пассажирских помещений открываются широкие виды на обновленный исторический район за его пределами.


Плавно изогнутая крыша спроектирована таким образом, чтобы приглашать пассажиров войти и направить их внимание на причал. По прибытии происходит обратное: тщательно продуманные виды открывают высадившимся пассажирам вид на город за его пределами. Эта экспериментальная последовательность усиливает концептуальное представление о портале и по своей сути отражает дух терминала.

