История участника реалити о ремонте

Это история из Сообщества. Редакция задала вопросы, бережно отредактировала и оформила по стандартам Журнала
В 2019 году я решил сделать ремонт в двушке в Хабаровске и уложиться в 1 500 000 ₽.
Она досталась мне от бабушки, и интерьер нас в целом устраивал, но хотелось сделать пространство более комфортным. Я самостоятельно составил дизайн-проект в программе Remplanner и к концу весны 2023 года уже представлял, как все должно выглядеть в обновленной квартире. Тогда и приступил к поискам бригады. На это потребовался почти месяц.
1 июля я уехал в отпуск с семьей, а когда вернулся, начал освобождать квартиру от вещей. Часть продал через «Авито», что-то мы с женой разместили на складах, а то, что требуется постоянно, увезли с собой. На время ремонта мы переехали к моей маме.
Вот как проходил ремонт дальше
- Август 2023 года. Случайно дырявим соседке потолок
- Сентябрь. Превращаем квартиру в опенспейс с унитазом
- Октябрь. Кладем плитку и боремся с апатией
- Ноябрь. Я близок к срыву, но помогает жена
- Декабрь. Ремонтируем лоджию в мороз
- Январь 2024 года. Прорывает трубу отопления
- Февраль. Гигдуш освежающе бьется током
- Апрель 2025 года. Считаем траты
Август 2023 года
Кладем пол и дырявим соседке потолок
Бригадир создал групповые чаты в мессенджере: «Основной чат», «Фотоотчет» и «Финансы». В первом происходило общение со всеми исполнителями, которые занимались моим ремонтом. Во второй мастера присылали фото и видео с результатами выполненных работ. Туда же скидывались фотографии и ссылки на стройматериалы и технику, которые использовались в ремонте.
В чат «Финансы» пересылались все финансовые документы: чеки, квитанции, накладные.
Также я, переживая за возможные неудобства для соседей, напечатал объявление с информацией о сроках предстоящего ремонта и указал номер своего телефона. Наклеил его на первом этаже, на самом видном месте.

Демонтаж старой отделки. 16 августа 2023 года мой ремонт официально стартовал. Демонтажом занималась отдельная бригада. Я очень переживал за процесс, потому что в моем представлении на эти грязные и неквалифицированные работы нанимают в основном маргиналов. Боялся повреждения подоконников, окон, батарей и входной двери, которые ремонтировать не планировалось. Также волновался за водопроводные и газовые трубы и их возможное повреждение со всеми вытекающими последствиями.
Оказалось, мои опасения были напрасными. Бригада из вполне приличных молодых парней аккуратно сделала все за два дня. Демонтаж под ключ обошелся в 80 000 ₽.
Стяжка пола. 19 августа завезли пеноплекс. На следующий день рабочие уложили и прикрепили его к полу специальными пластиковыми дюбелями. 21 августа залили полусухую стяжку и разровняли ее специальной машинкой.
Дальше необходимо было периодически проливать стяжку водой и накрыть ее пленкой, чтобы набиралась твердость. Стяжка пола под ключ обошлась мне в 120 000 ₽ за 44 м².


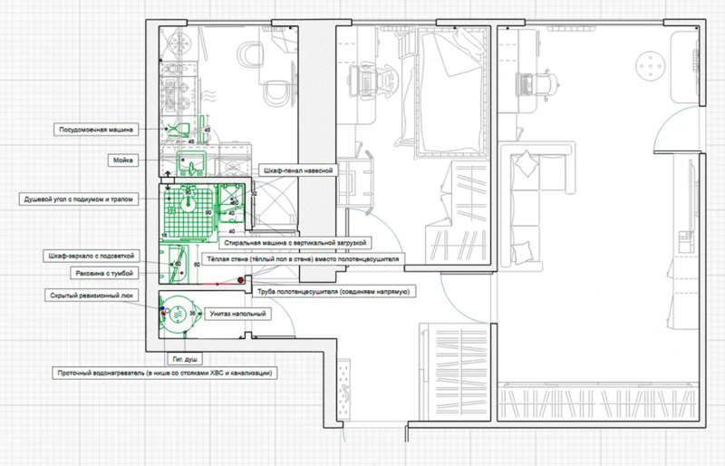
Разводка коммуникаций. На 22 августа мы запланировали встречу с мастером по сантехнике Игорем. Задача стояла трудная. Надо было как-то впихнуть в наши микроскопические санузлы все, что я предусмотрел в дизайн-проекте, развести коммуникации.
В туалете все было более-менее понятно: напольный унитаз, гигиенический душ и небольшой проточный водонагреватель. Ювелирная работа предстояла в ванной комнате. На 2 м² требовалось уместить душевой угол 90 × 90 см, подвесную раковину с тумбой, стиральную машину, корзину для белья, шкаф-пенал и туалетный шкафчик с зеркалом.
Еще для экономии места Игорь предложил убрать водяной змеевик, а вместо него сделать теплую стену — когда теплый пол укладывается в стене за кафельной плиткой. Также в ванной комнате планировалось сдвинуть дверной проем влево на 10 см, чтобы все смотрелось органично.


Разводка электрики. Ее делали по потолку. 23 августа я привез материал для прокладки электрического и слаботочного
кабелей, а также распечатки схем расположения розеток и выключателей из проекта. По ним рабочие должны были делать штрабы и отверстия для подрозетников.
Кондиционер. 31 августа мастер сделал трассу под кондиционер на кухне и уложил в нее коммуникации. Черновой электромонтаж под ключ обошелся в 100 000 ₽.


Неприятное происшествие. Утром 30 августа я получил сообщения от соседки снизу с фотографиями дыр в потолке и осыпавшейся штукатурки. Оказалось, работники в процессе укладки пеноплекса на пол насквозь просверлили потолочное перекрытие. Надо отдать должное всем моим исполнителям, свои промахи они всегда признавали и оперативно устраняли. На следующий день соседке замазали и забелили дыры на потолке.
Результат соседку не устроил, так как места, где были дыры, теперь выделялись на фоне остального потолка из-за свежей побелки. Она просила побелить весь потолок, чтобы он выглядел так, как было изначально. Я посчитал, что это справедливо, и мастер со скрипом, но все-таки привел потолок в исходное состояние.
ЗАЯВКА В РЕАЛИТИДелаете ремонт? Превратите это в реалити

Рассказать Сентябрь 2023 года
Сносим стены и переносим газовый кран
На 8 сентября мы назначили доставку основных стройматериалов. Черновых вышло на 60 000 ₽, чистовых — на 135 000 ₽.
Снос стен. К 15 сентября мы сломали кирпичные стены в санузлах и выстроили перегородку из гипсоволокна между залом и прихожей. Было необычно наблюдать, как кухня, ванная комната и туалет превратились в одно помещение. Для возведения новых стен в санузлах пришлось докупить материал на 25 000 ₽.


Демонтаж труб. 10 сентября мастера демонтировали старые трубы по всей квартире, которые давали и отводили воду еще с момента постройки дома. К 21 сентября был готов каркас из металлопрофиля в санузлах. За материал я заплатил 22 000 ₽.
22 сентября сделали разводку канализации, а 23-го проложили трубы холодного и горячего водоснабжения и установили проточный водонагреватель.
Расположение гарнитура. В процессе подготовки стен встал вопрос о расположении кухонного гарнитура со всеми его элементами, которые требуют подключения к воде и электричеству. Нужен был специалист, который проведет экспертизу моего проекта и реализует его. По опыту друзей, я хотел заказать кухню частному мастеру, считая, что так можно сэкономить. Мне удалось такого найти, и к концу сентября мы обсудили почти все сложные вопросы.
Перенос отвода газовой трубы. Изначально отвод, как положено, располагался недалеко от плиты, на самом видном месте. Я задумал перенести его и газовый счетчик в верхний кухонный шкафчик, а гибкий шланг опустить за холодильник.
У меня сохранился контакт мастера, который ранее менял мне газовый счетчик и консультировал на тему переноса отвода. Я с ним связался, и мы договорились о проведении работ на 25 сентября. В назначенное время приехал Владимир с помощником. Они отключили газ, сбросили давление и переварили отвод туда, куда я им указал. Оставили акт о выполненных работах, и я отдал 6000 ₽.


Сварочные работы. Они включали в себя перенос отвода от стояка горячей воды, демонтаж змеевика и соединение трубы полотенцесушителя напрямую. За день до запланированных работ я написал заявление в управляющую компанию и заплатил 1458 ₽ за отключение горячей воды.
Оштукатуривание. К 26 сентября мастер обшил гипсоволокном стены в санузлах и соорудил подиум душевого угла. Внутри фальшстен уложил звукоизоляцию, а со стороны кухни установил ОСП-плиту, чтобы навесить кухонные ящики.
29 сентября мастера сняли радиаторы центрального отопления во всех комнатах, чтобы отделочники могли оштукатурить ниши за батареями.


Октябрь 2023 года
Укладываем плитку, выбираем кухню — замечаю апатию у бригады
Замена оконных откосов. В конце сентября пришло время искать исполнителя для утепления окон и двери на лоджию. Проблема была в откосах, монтажная пена под которыми за многие годы потеряла свои свойства и пропускала холод. Соответственно, требовалось заменить откосы и пену под ними.
Работы продлились два дня — 20 и 21 октября. Замена откосов на двух окнах и балконной двери обошлась в 10 152 ₽, материал — в 8967 ₽.
Укладка керамогранита в прихожей. Изначально я не задумывался о рисунке раскладки и хотел уложить плитку квадратами. Но, читая отзывы о разнообразном керамограните, увидел фотографии укладки ромбами с дополнительными вставками и захотел так же.
Бригадир сказал, что это возможно, но немного поднял цену за усложнение работы. Также мне пришлось подобрать и закупить керамические вставки. За работу отдал 18 000 ₽.

Плиточные работы в санузлах. Туалет и ванную делали по эскизам проекта из «Леруа». Я попросил строителей сделать за унитазом нишу с полкой, чтобы спрятать в нее внутренности гигиенического душа. На полке планировал разместить туалетные принадлежности и декор.
Перед укладкой плитки санузлы обработали гидроизоляционной мастикой. По совету мастеров в зону душа я взял эпоксидную затирку, на остальные места — цементную.


Выбор кухни. После долгих согласований 6 октября мне предоставили расчет по кухне. Общая стоимость изготовления и монтажа составила 136 000 ₽.
У мастера были образцы материалов разнообразных цветов и фактур для кухонных фасадов и столешницы. Мы собирались на кухне и при дневном свете прикладывали образцы к плашке кухонного ламината и стенам, пытаясь понять, как это сочетается. После этого мы с супругой ехали в строительные магазины и примеряли образцы к понравившимся кухонному фартуку и обоям.
Когда закончили все уточнять, мастер подготовила договор. 28 октября я внес предоплату, и изготовление кухонного гарнитура запустили в работу.


Установка подсветки санузла. В конце октября, когда отделка санузлов подходила к концу, мы закупили материал для декоративной подсветки ванной комнаты и туалета: светодиодную ленту, профили и блок питания. Блок питания закрепили на потолке, от него в межплиточных швах проложили тонкий провод для подключения светодиодных лент.
Сначала планировали, что декоративная подсветка будет включаться вместе с основным светом. Но она была яркой, и я подумал, что необходимо сделать отдельный выключатель. В туалете сделали подсветку светодиодной лентой по периметру жалюзийной дверки, которая закрывала окно в техническую нишу с трубами.


Вместе с подсветкой закупили и установили розетки для санузлов. Я хотел поставить влагозащищенные розетки с крышками, но они стоили в три раза больше обычных. Взял золотую середину — розетки с защитными шторками.
После завершения облицовки санузлов и монтажа декоративной подсветки мастера установили и подключили сантехнику, смесители и стиральную машину. Также за октябрь и начало ноября мастера положили фартук из плитки на кухне и начали делать ремонт на лоджии. Подробнее я рассказывал об этом в отдельном посте.
Моральное состояние. К окончанию общих черновых и плиточных работ ритмичность действий моих работников начала снижаться. Впереди было еще много всего, а из запланированных на ремонт четырех месяцев оставалось всего полтора. Я стал замечать, что вовлеченность мастеров в мой ремонт уменьшается.
Приходилось все чаще брать на себя роль бригадира, всех подгонять и напоминать о разных мелочах, которых имелось немало. Новый год я железно планировал встретить в отремонтированной квартире. Но чем ближе была дата окончания ремонта, тем больше рос разрыв между желаемым и действительным и тем больше росла моя тревога и усталость от всего. Бригадир говорил, что все успеем в срок, но на деле было видно, что не успеем.
Ноябрь и начало декабря 2023 года
Бригада срывает сроки, я чувствую выгорание, но не сдаюсь
Точка невозврата. К началу декабря я уже понял, что в обозначенный срок — 16 декабря — ремонт не закончится и до Нового года мы с семьей в свою квартиру не вернемся. От всех переживаний, связанных с ремонтом, от огромного количества информации и каждодневной необходимости принимать разные решения у меня случилось что-то типа эмоционального выгорания.
Я продолжал свой ремонт, но никаких чувств при этом не испытывал — ни положительных, ни отрицательных. Мне стало уже все равно, сколько это продлится и чем закончится. Это было странное состояние, с которым до этого я никогда не сталкивался.
В этот трудный момент на помощь пришла жена. Начинался этап отделочных работ, и она стала проявлять живой интерес к подбору цветов и материалов и к тому, каким в итоге будет конечный результат. Ее энергия начала подпитывать и меня, и я не упал духом окончательно.
Выбор шкафов. Из корпусной мебели кроме кухонного гарнитура мне требовались шкафы в зал, детскую и прихожую. Цена в «Леруа» была приемлемая, а вот отзывы о качестве оставляли желать лучшего.
Поэтому изготовить шкафы я поручил мастеру, которая уже занималась кухней. Ее проект был адаптирован под наши потребности и размеры комнат, а цена почти не отличалась от того, что нам насчитали. Я заказал шкафы у нее. Стоимость: прихожая — 56 603 ₽, зал — 109 000 ₽, детская — 61 333 ₽.
Потолочные работы. В конце ноября зашли потолочники и по периметру комнат набили багет для крепления натяжного потолка, а также смонтировали скрытый карниз для штор в зале. Из-за неровности потолочной плиты натяжной потолок опустился от чернового на 7—13 см. За набивку багета, монтаж скрытого карниза и материал потолочники взяли с меня 35 000 ₽ предоплаты. Полная стоимость — 60 000 ₽.
Покупка межкомнатных дверей. Пять дверей с коробами, наличниками и всей фурнитурой обошлись в 83 720 ₽.
Покупка и поклейка обоев. Обои мы с женой подбирали, используя образцы напольного покрытия. Количество рулонов высчитывал по площади стен за минусом пространства за шкафами, где обои не планировались. Всего заплатил 30 453 ₽.
1 декабря обои начали клеить. На улице уже стояла морозная погода, и в отсутствие батарей и плинтусов тянуло холодом на стыках стен. По этой причине обойный клей плохо вставал в этих местах. Но 3 декабря мастер закончила поклейку, устранила замечания, я принял ее работу и заплатил 36 680 ₽.
Декабрь 2023 года
В мороз занимаемся батареями и лоджией
Перенос батареи. 12 декабря мастера прикрепили трубы отопления к стенам, поменяли прокладки, обслужили и навесили старые радиаторы на свои законные места. Результат выглядел вполне достойно, а мастера успокоили, сказав, что стояки, краны и батареи у меня хорошие и проблем в будущем быть не должно.
К концу года мы подошли к монтажу натяжных потолков и кухонного гарнитура, но к этим работам можно было приступить только после переноса стояка отопления и радиатора на кухне. За окном стояли крепкие морозы, и управляющая компания не разрешала сброс воды в системе отопления. Пришлось договариваться с местным слесарем и устраивать специальную операцию по отключению отопления и быстрому проведению необходимых работ.


Ремонт лоджии. Демонтаж старого окна, организация выноса и монтаж нового изделия занял у мастера три дня. Старую раму и алюминиевые створки я выставил на «Авито» и в скором времени продал за 4500 ₽. Лоджия за счет выноса заметно увеличилась.
Утеплять решили пеноплексом и монтажной пеной. Долго думал, какой материал использовать для чистовой отделки стен, и в итоге выбрал белые панели МДФ с объемной текстурой под кирпич. Потолок планировался, как и везде, натяжной. Еще требовался пластиковый подоконник, который я купил отдельно. На лоджии предполагались свет, две розетки и терморегулятор теплого пола.
Стоимость всех работ и материалов составила 220 941 ₽.



Конец декабря и январь
Справляемся с коммунальной аварией и обустраиваемся
Замена трубы. Утром 29 декабря мне позвонил слесарь из управляющей компании и попросил доступ в квартиру, потому что в квартире этажом ниже, но в другом крыле якобы капала вода с потолка. Оказалось, что с общедомовой трубы отопления, которая проходит через нишу в туалете, сочится горячая вода и медленно утекает вниз. Небольшую течь горячей воды обнаружили и у меня, и в квартире снизу. Этот участок трубы необходимо было менять.
Ремонт в туалете был уже закончен! Уложена новая плитка, установлена сантехника. Хорошо, что я оставил большое окно в нишу для обслуживания сантехнических коммуникаций.
Трубу заменили. Но отверстие, через которое проходила новая труба, стало намного больше, и из своей квартиры я видел соседкин туалет. Заделал образовавшуюся дыру монтажной пеной.


Сборка кухонного гарнитура. Новый год наступил, и я почувствовал некоторое облегчение. Оставалось собрать кухню, смонтировать шкафы, установить розетки с выключателями, натянуть потолки — и можно было переезжать обратно.
В самом начале января мебельщик Андрей привез в разобранном виде кухонный гарнитур и начал его сборку. Вместо планируемых двух-трех дней потребовалась неделя, но результат был потрясающий. По сути, кухня получилась такой, какой я ее изначально спроектировал в Remplanner.
Гарнитур со сборкой обошелся в 142 000 ₽, и я считаю, что это просто подарок.


Монтаж натяжных потолков. Работы требовалось сделать до навески кухонных шкафов, но мастер долго не выходил на связь. Поэтому шкафы все же установили, а потом их пришлось снимать.
Общее впечатление подпортили еще две вещи. Во-первых, после окончания работ вся квартира покрылась слоем мелкой пыли, хотя к тому моменту мы уже все отмыли и даже пропылесосили обои. Пришлось убирать еще раз. Во-вторых, при одновременном открывании входной двери и ведущей на лоджию натяжной потолок в зале поднимался и начинали просвечивать кабели, которые там проложены.
В переписке мастер несколько раз говорил, что исправит проблему завтра, а потом перестал отвечать. Натяжной потолок во всей квартире обошелся мне в 60 000 ₽ вместе с материалом.
В этом месяце мы также подключили варочную панель на кухне к газу и приняли доставку мебели в детскую.



Февраль 2024 года
Заканчиваем ремонт, но гигиенический душ бьет током
16 февраля 2024 года мы переехали обратно в свою квартиру. Наш капитальный ремонт занял ровно полгода. После возвращения домой нас ждали в основном приятные хлопоты: покупка недостающей мебели, декора, аксессуаров и обживание нового пространства.
Из мебели оставалось подобрать стенку-гостиную, письменные столы и кресла к ним, кухонные стулья. Понравившийся стол в детскую и стенка в зал продавались под заказ. Доставили их нам и собрали только в мае.
После покупки мебели мы поучаствовали в розыгрыше призов в честь дня рождения магазина и выиграли сертификат на 10 000 ₽. На эти деньги купили письменный стол в зал.



Но это еще не все: меня ждал сюрприз в санузле. Я стал замечать странное пощипывание при пользовании гигиеническим душем. Когда покончил с более насущными проблемами и приступил к поиску причин этого явления, обнаружил, что гигиенический душ находится под напряжением сети 238 В!
Оказалось, что при монтаже планки, на которую навешивали кухонные шкафы, саморез прошел через металлический профиль каркаса стен санузлов. В нем был проложен электрический кабель для розетки на кухне. Саморез попал в этот кабель, и фаза оказалась на металлопрофиле. А в туалете на этом металлическом скелете был закреплен гигиенический душ.
Мы с бригадиром сняли кухонный шкафчик, перекрутили саморез в монтажной планке, и напряжение с душа ушло.




Апрель 2025 года
Подсчитываем траты
Я начал вести дневник спустя почти год после ремонта и посвятил один из последних постов тратам. В нем подробнее рассказал, на чем сэкономил и где переплатил. Здесь остановлюсь на расходах в общих чертах.
К своему капитальному ремонту я подошел с накоплениями примерно 1 500 000 ₽. Демонтаж, стяжка, электрика, сантехника, черновые и отделочные работы вышли как раз на эту сумму. Кухня, мебель, техника, двери, лоджия, декор и аксессуары стоили еще чуть больше 900 000 ₽.
Траты я заносил в гугл-таблицы. Их у меня было две: первая — под материалы, разделенные по категориям, вторая — под работы и услуги. Расходы на отделку и утепление лоджии считал отдельно, так как изначально заниматься этим во время ремонта не планировал. Новая лоджия обошлась в 220 941,04 ₽. Для удобства я ниже объединил все статьи расходов в таблицу.
Оказалось, что ремонт может принести не только затраты, но и доход. В отдельную табличку внес полученные мной доходы, в основном от продаж на «Авито». Получилась солидная сумма — более 100 000 ₽.
Ремонт двушки — 2 587 686 ₽
| Мебель | 410 064 ₽ |
| Ремонт лоджии | 220 941 ₽ |
| Отделка санузлов | 200 000 ₽ |
| Отделочные материалы | 193 417 ₽ |
| Техника | 186 355 ₽ |
| Черновые материалы, инструмент, расходники | 146 956 ₽ |
| Изготовление кухни | 142 000 ₽ |
| Двери | 121 220 ₽ |
| Стяжка пола | 120 000 ₽ |
| Электромонтаж | 106 050 ₽ |
| Сантехника и мебель для санузлов | 99 386 ₽ |
| Выравнивание и устройство стен | 98 400 ₽ |
| Сантехнические работы | 88 158 ₽ |
| Демонтаж старой отделки | 80 000 ₽ |
| Натяжные потолки | 60 000 ₽ |
| Электрика и слаботочка | 52 728 ₽ |
| Декор и аксессуары | 49 987 ₽ |
| Освещение | 38 840 ₽ |
| Полы чистовые | 38 000 ₽ |
| Поклейка обоев | 36 680 ₽ |
| Монтаж дверей | 29 500 ₽ |
| Грузоперевозки, доставка, вывоз мусора | 22 960 ₽ |
| Подключение кондиционеров | 18 000 ₽ |
| Пластиковые окна, двери | 10 152 ₽ |
| Газоснабжение | 8 782 ₽ |
| Монтаж напольного плинтуса | 6 460 ₽ |
| Дизайн-проект | 2 650 ₽ |
Ремонт двушки — 2 587 686 ₽
| Мебель | 410 064 ₽ |
| Ремонт лоджии | 220 941 ₽ |
| Отделка санузлов | 200 000 ₽ |
| Отделочные материалы | 193 417 ₽ |
| Техника | 186 355 ₽ |
| Черновые материалы, инструмент, расходники | 146 956 ₽ |
| Изготовление кухни | 142 000 ₽ |
| Двери | 121 220 ₽ |
| Стяжка пола | 120 000 ₽ |
| Электромонтаж | 106 050 ₽ |
| Сантехника и мебель для санузлов | 99 386 ₽ |
| Выравнивание и устройство стен | 98 400 ₽ |
| Сантехнические работы | 88 158 ₽ |
| Демонтаж старой отделки | 80 000 ₽ |
| Натяжные потолки | 60 000 ₽ |
| Электрика и слаботочка | 52 728 ₽ |
| Декор и аксессуары | 49 987 ₽ |
| Освещение | 38 840 ₽ |
| Полы чистовые | 38 000 ₽ |
| Поклейка обоев | 36 680 ₽ |
| Монтаж дверей | 29 500 ₽ |
| Грузоперевозки, доставка, вывоз мусора | 22 960 ₽ |
| Подключение кондиционеров | 18 000 ₽ |
| Пластиковые окна, двери | 10 152 ₽ |
| Газоснабжение | 8 782 ₽ |
| Монтаж напольного плинтуса | 6 460 ₽ |
| Дизайн-проект | 2 650 ₽ |